
おはようございます!サトシです。
約2年半の四国の松山・高松、2年2か月に渡るアメリカ・オレゴン州ポートランド、9カ月の沖縄の単身赴任の旅を終えて、2021年3月5日に23年間のサラリーマン人生に終止符を打って、2021年3月9日より東京都品川区南大井で不動産を主に取り扱う「Anchors株式会社」を起業しました。
2026年になりました。早くも3月9日で5周年を迎えます。
今後とも応援よろしくお願いします。
ここをクリックしてお買い物いただいてありがとうございます。応援になります!
今日は曇り空でスッキリせん天気やなぁ。昨日はWBCで大谷サンが満塁ホームランを打ってスカッとしたけどな。
朝から大倉山師岡町の資料作成とか整理とかをチマチマやっています。一応、スーモにささやかな感じで掲載したら、反響があったので、急遽作成してる次第です。スーモって掲載してから3~4日後くらいに反響が始まるんやけど、昨日の夜遅くに掲載登録したから、予想以上に速い反応や。私の資料のまとめが追いついとらん。他社さんからもお客さんから問い合わせがあって紹介させてくれないかと言われたりしました。おそらく、私じゃないと商品にかける想いが伝わらないと思っていますが。
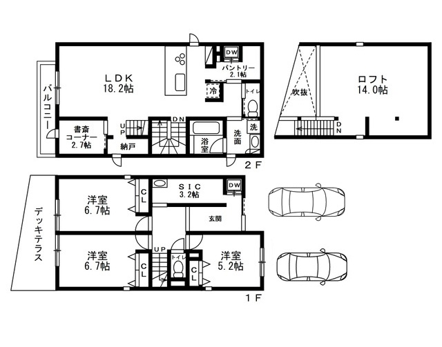
名称は「LaCrasso大倉山師岡町」にしていますが、屋号みたいなもんやから特に前面にだしてるわけじゃないけど。一応ラクに楽しく暮らそうというネーミングから物件コンセプトが始まってるからな。
変態的にいいものを追い求めた結果に出来た家やからなぁ。もはや建売住宅ではござらんクオリティになってしもとるからな。
いつも建物を作るときに同じようなことを言ってる気がする。うちも建物を建てて売り上げを出すというよりは、いいなぁと思う商品を実現できるとき以外は物件を買わんし、たまに分譲をするんやったら、お客さんに快適に住んでもらいたいなぁという想いで物件の企画をするからなぁ。ほんとに採算なんかあんまり考えないで、とにかくお客さんにとって、というか、自分が想像してみて、こうやったら便利やろうなぁとか快適やろうなぁとニヤニヤ想像しながら造ってる感じかなぁ。
そうじゃないと、1階から2階に荷物を上げられるリフト(DWって書いてるやつです。)を搭載するとか建売でやらんよな。床暖房もダイニングとリビングに入ってることが多いけど、キッチンの床に入ってないことが多いから、ここにも入れたほうがいいとか、シューズインクロークを大きくしてリフトと手洗いに土足のまま行けるようにするとか、色々考えとるんよなぁ。

想像したときに地震がきて、建物が倒壊したらいややから、耐震等級を一番良い3にしたり、寒いのも暑いのもいややから、ZEH水準の断熱と省エネルギーにしたりしました。車も1台おけて自転車も余裕で置きたいから、普通車1台の他に軽自動車1台分のスペースを確保しておけば多用途で使ってもらえるなぁとか、色々配慮しました。

1Fのデッキテラスにも照明があったほうがいいやろうから、2階のバルコニーから照らせるようにダウンライト入れたり、ほんと変態的な追及をしたつもりです。それでも、後から考えたら、あれもやっといたら良かったはあるんやろうけどな。
その分、コストも変態的になってもたけど(笑)。後から付けられないものはできる限り入れといたつもりです。
外観は一応こんな感じにしようかなぁと思ってますが、まだ決定してません。B棟はこんな感じで考えてるんやけど、実際に出来て外構も含めたらもっともっと恰好よくなるはず?


なんか勢いで書いてしもた。
じゃあ、今日も1日がんばっていきまっしょい!



